Bite to Eat

Taipei City, Taiwan | 2017


 

在一座義大利莊園派對中,有人圍著長桌用餐,有人打起帳篷露營、有人徜徉在草皮上野餐,或悠閒坐在公園椅上曬太陽,多麼愜意的歡聚時光,該如何收攏在一座大房子裡呢?

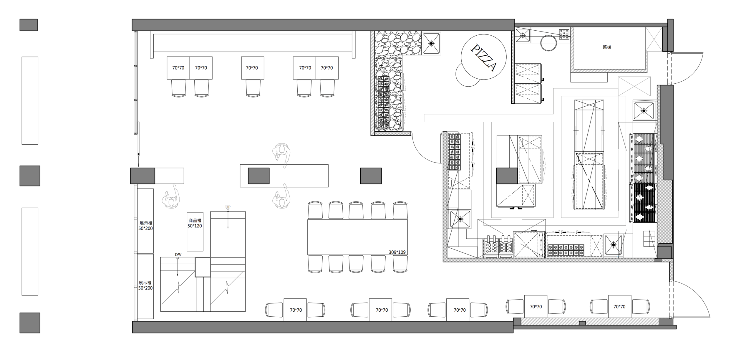
發想來自義大利質樸又絢麗的小房子,從餐廳立面便可看見許多小房屋的剪影,引人入勝;一樓外門廊以拱形造型,搭配兩張長凳打造純樸輕鬆的小廣場,客人在此相遇、等候、談天說地。

入口以一扇工法細緻的生鐵大門,搭配地面鋪排的窯變磚,描繪歐洲街景,再以一拱形開口,讓人可瞧見 Pizza 窯爐,更可悄探廚房作業,讓窯烤過程猶如完成一道美食的神秘儀式,搭配略帶昏黃的燈光,呈現酒館的微醺和溫暖。

一樓是令人放鬆的酒館氛圍,以人們慣用的桌椅佈局,滿足商務客、情侶約會用餐模式,櫥窗處的「小市集」推車專門販售橄欖油、麵條、酒醋等義大利食材,也吸引外頭來往的客人駐足停留,小市集旁,一座擁有充足採光的螺旋梯,以綠帶為背景,帶領人們進入每層樓不同的空間敘事。

At a party in an Italian manor, some people dine around a table in the dining room, some set up tents around the house, while others leisurely bask in the sun on park benches. How to put all these relaxed, happy events into one room?

Inspired by simplistic yet gorgeous Italian houses, the facade of the restaurant features the silhouettes of many small houses, creating an inviting scene. The first floor porch has an arched design and two benches, creating a simple and relaxing area for customers to meet, wait, and chat. At the entrance is a cast iron gate of intricate craftsmanship, accented by kiln-fired tiles on the ground to recreate a scene of an European street. Another arch is built to allow a view of the pizza oven within, so that people can peer into the goings on in the kitchen, turning the baking process into a mysterious ritual performed to summon delicious food. The subtle yellow lighting creates the slightly dimmed but warm atmosphere of a pub.

The first floor is a relaxed pub ambiance, with tables and chairs arranged in a way people are accustomed to, catering to the dining patterns of business guests and dating couples. Near the first floor window, a "Little Bazaar" sells a variety of Italian ingredients such as olive oil, noodles, and vinaigrette. The assortment of goods are displayed on a modern black iron stand, which is not only convenient for shoppers, but also attracts passing guests to stop and take a look. Next to the "Little Bazaar", a spiral staircase with ample lighting on top uses the green belt background it creates to lead people into different levels of spatial narratives.

 

走上二樓,陽光灑落,有如內陽台,往深處走,一側牆面彩繪活潑的野餐主題,另一側以麻質織品佈置天幕,似有微風吹拂,讓人享受有如徜徉自然的野餐情境;牆面和天花板皆採一片片手刷做舊、染白的杉木實木板,讓空間更顯明亮、有層次。

鄰復興南路一側靠窗處,為親子客群最愛,低矮的桌面設計,混搭色彩豐富的墨西哥花布與日式坐墊,小朋友可隨處走動、爬行。不受束縛的自由場域。

在軟裝佈置上,以窗邊懸掛的植栽、窗台的野餐用具,伴隨休閒感十足的藤編燈飾,讓大人們也帶著雀躍心情席地而坐,體驗悠然的「室內野餐」。

Walk up the second floor, and sunlight filters in as if you've stepped into an indoor patio. Walk further inward to find two main sections: One side of the wall features a lively picnic theme, while the other is decorated with linen fabric to create a canopy for a romantic, breezy feeling. The two sections have one important commonality: both allow people to feel a sense of enjoying a lovely picnic outdoors. Adjacent to the window facing Fuxing South Road is an area favored by families. The low desktop design mixes richly-colored Mexican fabrics and Japanese fabrics on wood grain

bricks as cushions. It is also a place for children to walk and crawl around freely without restraint. As for the presentation of home decor, the plants hanging by the window, picnic equipment on the window sill, and wicker lamps create a relaxed feeling, allowing adults to sit joyfully and enjoy a relaxing "indoor picnic". The walls and ceiling of this entire floor are composed of hand-distressed white fir panels that make the space brighter and richer.

 

相較於二樓的繽紛溫馨風格,三樓地面採用磨石子磚,整體空間氛圍較為粗獷,靠窗處以公園小圓桌營造悠閒氛圍,前方則規劃繽紛的 2~3 人座的小帳蓬區,另有露營折疊椅、導演椅為主的用餐區,刻意降低座高,呈現接近地面的野營感受,風格不制式,讓消費者自由選擇自己喜歡的座椅。

三樓植栽裝飾以蕨類、多肉為主,牆面以狂放的塗料呈現,搭配粗線條的麻繩燈飾,並設計猶如洞穴的拱門,伴隨幾筆動物腳印,巧妙營造洞穴般的原始場景,極富有張力,也讓這層樓成為客人包場辦 Party 的首選。

都市生活紛擾如常,在繁忙的生活中,我們希望為每一位走進薄多義的賓客,都能夠擁抱自然生活的光景,沉浸在舒心相遇的場景。

Compared to the warm and colorful style of the second floor, the third floor uses terrazzo flooring to create a spatial atmosphere more rugged than the second floor. Small round tables, the type typically found in parks, are placed near the window to create a relaxed atmosphere, and in the front is a small tent area with seats for 2~3 people. There is also a dining area with folded chairs and director's chairs. The height of the chair is purposely lowered to be closer to the ground for a camping experience. The variety of seating styles allows customers to easily select their favorite seats. Plants on the third floor comprise mostly ferns and succulents. Paints with wild textures are selected, paired with hemp hanging lights that have more defined shapes. An arched doorway designed like a cave is added, along with some "animal footprints" on the floor, ingeniously creating the primitive atmosphere of a cave, making this floor textured and dramatic, the first choice for customers wanting to throw private parties.

Urban life is tumultuous as always, but in this busy lifestyle, we hope to create a place that embraces natural life and comfortable encounters for every customer that walks into BiteToEat.

 
 
view all photos